Kasbah Neuve en construction – Zone Urbaine d’Essaouira, Potentiel Maison d’Hôtes
Description
Atlasimmobilier vous propose une Kasbah neuve exceptionnelle, intégrée à un programme immobilier rare en zone urbaine, à seulement 10 minutes d’Essaouira. Ce positionnement stratégique permet à tout acquéreur, y compris les non-résidents, d’acheter sans obligation de VNA, un avantage unique sur le marché local.
Caractéristiques principales de la Kasbah :
-
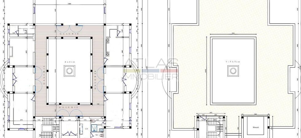
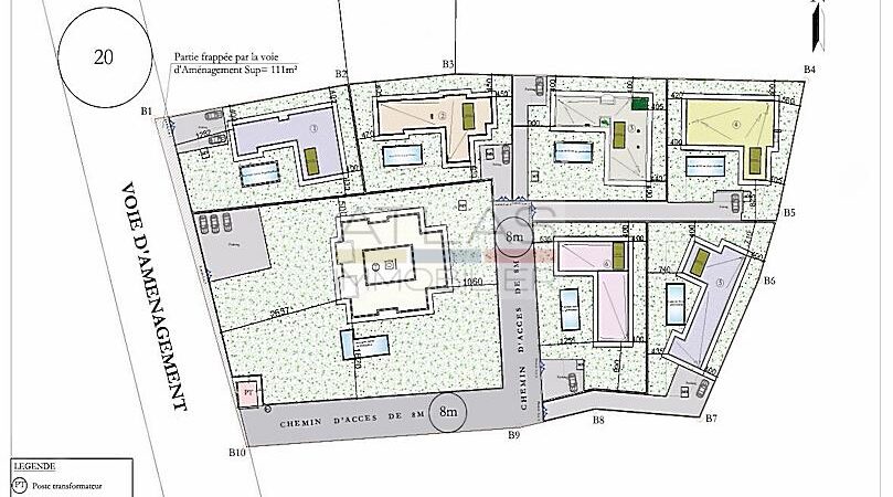
Terrain : 2 448 m²
-
Superficie construite : 320 m²
-
Plain-pied :
-
Espaces polyvalents (réceptions, salons, activités)
-
Cuisines professionnelles
-
Patio central et galeries ouvertes
-
Six chambres avec salles de bains (dont deux avec dressings)
-
Une chambre complémentaire (Menzeh) en terrasse
-
Jardin paysager et piscine
-
Parking privé
-
Prix : 1 000 000 € à négocier
Atouts supplémentaires :
-
Programme neuf avec accompagnement complet jusqu’à la livraison finale ou possibilité d’acquisition en l’état actuel.
-
Potentiel de classement futur en maison d’hôtes, offrant une opportunité idéale pour les investisseurs du secteur touristique haut de gamme.
-
Environnement calme et verdoyant, à proximité immédiate des axes urbains, avec accès facile aux commodités d’Essaouira.
Autres opportunités disponibles :
Vous pouvez cliquer sur les liens ci-dessus pour accéder directement aux annonces dédiées aux villas individuelles et à l’ensemble du projet.
Contactez-nous dès aujourd’hui pour plus d’informations, organiser une visite privée, ou découvrir les multiples possibilités offertes par ce programme exceptionnel.




















