Terrains titrés vendus rapidement à Assouel, Médina de Marrakech
Description
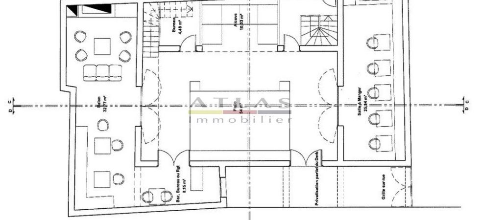
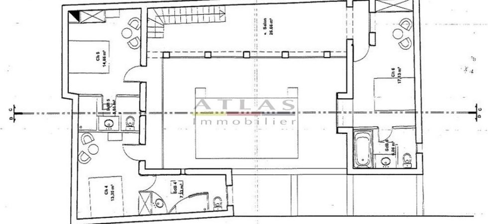
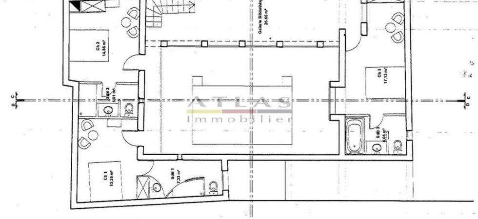
Nous avons vendu deux terrains contigus, d’une surface totale de 187 m², situés à seulement 200 mètres du Musée du Parfum dans la médina de Marrakech. Ces terrains, entièrement dégagés et titrés au même nom, offraient de nombreuses possibilités pour un projet immobilier dans un quartier prisé de Marrakech.
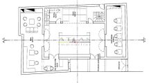
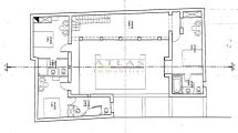
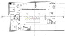
Le premier terrain mesurait 1 are 24 centiares, et le second 63 centiares. Ils pouvaient être acquis séparément ou fusionnés selon le projet envisagé. Les plans fournis étaient à titre indicatif, permettant aux futurs propriétaires de visualiser le potentiel de ces terrains.
Grâce à notre expertise et à notre réseau, ces terrains ont été vendus rapidement. Si vous possédez un terrain ou une propriété à Marrakech et souhaitez vendre, notre agence immobilière est le partenaire idéal pour vous assurer une vente rapide et au meilleur prix. Collaborer avec nous vous offre l’avantage d’une visibilité optimale et d’un accompagnement sur mesure tout au long du processus de vente.
Pour visiter des propriétés similaires ou d’autres terrains dans la médina de Marrakech, n’hésitez pas à nous contacter.
Caractéristiques
- agence immobilière Marrakech
- agent immobilier Marrakech
- conseils vente immobilière Marrakech
- courtier immobilier Marrakech
- estimation immobilière Marrakech
- évaluation bien immobilier Marrakech
- immobilier Assouel Marrakech
- marché immobilier Marrakech
- mise en vente Marrakech
- prix immobilier Marrakech
- secteur porteur marrakech
- terrain à vendre Marrakech
- terrain nu médina Marrakech
- terrains à fusionner Marrakech
- terrains titrés médina Marrakech
- vendre appartement Marrakech
- vendre maison Marrakech
- vendre propriété Marrakech
- vendre villa Marrakech
- vente immobilière Marrakech
- vente rapide Marrakech
- vente rapide terrain Marrakech
- vente terrain Marrakech




















